Diplomarbeiten aus dem

MOMAC - museum of modern alpine cuisine

Die vorliegende Diplomarbeit beschäftigt sich mit der Planung eines Museumsgebäudes namens MOMAC.

Das MOMAC verkörpert eine harmonische Verbindung zwischen traditioneller alpiner Architektur und zeitgenössischem Design. Das Bauwerk ist inhaltlich in 10 Ebenen gegliedert und setzt sich aus einem Museums- und einem Restaurantbereich zusammen. Ziel des Konzeptes ist, dass es eine Bewusstmachung über das Ökosystem und den Lebensraum der Alpen schafft. Es etabliert einen Ort des Wissens- und Erfahrungsaustausches.

Gelegen auf der Postalm, ist der Standort ein perfekter Anlaufpunkt für Touristen, die das ganze Jahr über die Schönheit der Region erleben möchten. Die Postalm liegt auf einer Hochebene zwischen Strobl und Abtenau. Es ist das höchstgelegene und größte zusammenhängende Almgebiet Österreichs.

Die charakteristischen alpinen Dörfer dienen als Inspiration für das architektonische Konzept, das durch versetzte Baukörper und das traditionelle flache Satteldach geprägt ist. Die schrägen Holzstützen an der Außenfassade erinnern an traditionelle Holzfachwerkbauten. Sie sind separat vom Baukörper zu betrachten. Der Grundriss kann an verschiedene Lagen und Bedürfnisse angepasst werden, was die Möglichkeit bietet, das MOMAC kontinuierlich weiterzuentwickeln und den sich ändernden Anforderungen anzupassen. Die addierbaren Baukörper ermöglichen ein ortsunabhängiges Gebäude.

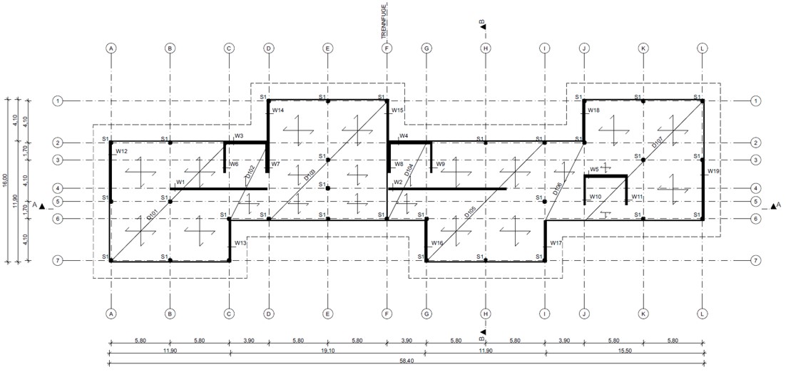
Die Materialien, die für den Bau des MOMACs verwendet werden, sind sorgfältig ausgewählt, um eine nachhaltige und langlebige Struktur zu gewährleisten. Eine Mischbauweise aus Holz und Stahlbeton bietet nicht nur Stabilität, sondern zeugt auch von ökologischer Verantwortung. Die tragende Struktur beruht auf punktgelagerten Decken und Stützen.

 

This diploma thesis deals with the planning of a museum building called MOMAC.

The MOMAC embodies a harmonious connection between traditional Alpine architecture and contemporary design. The building is divided into 10 levels and consists of a museum and a restaurant area. The aim of the concept is to create awareness about the ecosystem and habitat of the Alps. It establishes a place for the exchange of knowledge and experiences.

Located on the Postalm, the location is a perfect starting point for tourists who want to experience the beauty of the region all year round. It lies on a plateau between Strobl and Abtenau. It is the highest and largest contiguous alpine area in Austria.

The characteristic Alpine villages serve as inspiration for the architectural concept, which is characterized by staggered buildings and the traditional flat gable roof. The slanted wooden supports on the outer facade are reminiscent of traditional timber-framed buildings. They must be viewed separately from the structure. The floor plan can be adapted to different locations and needs, giving MOMAC the opportunity to continually develop and adapt to changing requirements. The addable structures enable a location-independent building.

The materials used to build MOMAC are carefully selected to ensure a sustainable and long-lasting structure. A mixed construction made of wood and reinforced concrete not only offers stability, but also ecological responsibility. The load-bearing structure is based on point-supported ceilings and supports.

 

Diplomarbeitsteam und Aufgabenstellungen

Adin Hasanagic: Konstruktive Ausarbeitung der Gebäudehülle in Holzbauweise

Michael Baier: Brandschutz und Fluchtwegplanung des MOMAC

Magdalena Huber: Statisch-konstruktive Planung des Museumsgebäudes

Nico Höllwarth: Planung einer technisch hochwertigen Fassadengestaltung

 

Diplomarbeitsbetreuung

Prof. Arch. Dipl.-Ing. Thomas Pletzer

Prof. Arch. Dipl.-Ing. Petra Waldmann

Prof. Dipl.-Ing. Martin .Fellinghauer

MOMAC