Diplomarbeiten aus dem

Konstruktive Planung der Hotelanlage „Weiße Taube“

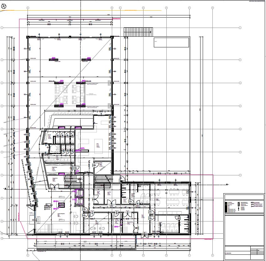
In der vorliegenden Diplomarbeit wurde das alte Hotelgebäude "Weiße Taube" am Mondsee, Schwarzindien 69, von Grund auf neu geplant, um den Raum direkt am See für Touristen und Besucher attraktiv zu gestalten und den Platz möglichst wirtschaftlich zu nutzen. Ziel war es, das gesamte Gebäude inklusive Tiefgarage sowohl konstruktiv als auch statisch auszuarbeiten.

Das gesamte Hotel wurde dem Vier-Sterne-Standard entsprechend geplant und mit den dafür notwendigen konstruktiven Standards ausgestattet. Das Hotel besitzt die Grundrissform eines L‘s, um einerseits aus allen vorhandenen Zimmern einen direkten Ausblick auf den See zu gewährleisten und andererseits im übrigen Areal einen begrünten Innenhof zu schaffen. Jedes der 32 Zimmer besitzt einen Balkon, um den atemberaubenden Seeblick genießen zu können.

Um die große Grundstücksfläche als begrünte Fläche nutzen zu können, wurde eine Tiefgarage eingeplant. Das Dach wurde mit einer extensiven Begrünung versehen, die für eine bessere Einfügung in die Umgebung sorgt. Das Restaurant im Erdgeschoss wurde großflächig verglast, um einen nahtlosen Übergang zwischen Innen- und Außenbereich zu schaffen. Zusätzlich wurde das Hotel mit einem Spa- und Fitnessbereich versehen.

Die dazugehörigen Pläne werden mittels ArchiCAD, Dlubal und Tekla Structures erstellt.

Als Resultat dieser Diplomarbeit sind unter anderem Ausführungspläne, Brandschutz- und Fluchtpläne, Konstruktionsdetails, ein Tragwerk in Stahlbauweise, Anschlussberechnungen und Werkszeichnungen entstanden.

 

In the present thesis, the old hotel building “Weiße Taube” located at Mondsee, Schwarzindien 69, was completely redesigned to enhance the attractive space by the lake for tourists and visitors and to utilize the area as economically as possible. The aim was to develop the entire building, including an underground parking garage, both structurally and statically.

The entire hotel was planned according to a four-star standard and equipped with the necessary structural standards. The hotel has an L-shaped floor plan, ensuring direct lake views for all existing rooms on one hand, and creating a green courtyard in the remaining area on the other hand. Each of the 32 rooms has a balcony to enjoy the breathtaking lake view. To utilize the large plot of land as green space, an underground parking garage was planned. The roof was provided with extensive greenery to better blend into the surroundings. The restaurant on the ground floor was extensively glazed to create a seamless transition between the interior and exterior areas. Additionally, the hotel was equipped with a spa and fitness area.

The associated plans were created using ArchiCAD, Dlubal and Tekla Structures.

As a result of this diploma thesis, execution plans, fire protection and evacuation plans, construction details, a steel structure, connection calculations and shop drawings were produced.

 

Diplomarbeitsteam und Aufgabenstellungen

Alexander Doppler: Statische Ausarbeitung der Tragkonstruktion in Stahlbauweise

Fabian Heimberger: Konstruktive und brandschutztechnische Bearbeitung der Bauaufgabe

 

Diplomarbeitsbetreuung

Prof. Dipl.-Ing. Miloslav Duran-Bastak

Prof. Arch. Dipl.-Ing. Alexander Lugner