Diplomarbeiten aus dem

Planung der Wohnbebauung Bright Side

Auf einem am Hainbach in Straßwalchen gelegenen Grundstück, unweit vom Zentrum, ist die Reihenhaussiedlung Bright Side geplant. Das Projekt besteht aus insgesamt 13 zeitgemäßen Wohneinheiten, die durch ihre moderne Architektur und zentrale Lage ein besonders attraktives Bauvorhaben darstellen. Zudem hebt der intensive Einsatz erneuerbarer Energien und nachhaltiger Bauteile den Standard dieses Projekts.

Neben offenen Grundrissen wurde bei der Planung bestmöglich auf eine besondere Außengestaltung Acht gegeben, die den Bewohnern zusätzlichen Komfort bietet. Die besondere Bedachtnahme auf Nachhaltigkeit und Energieeffizienz spiegelt sich durch das Erreichen des ,,Energiesparhaus-Standards‘‘ wider.

Die Marktgemeinde Straßwalchen bietet ideale Bedingungen für ein Refugium dieser Art. Mit ihren rund 8000 Einwohnern ist sie eine sehr bevölkerungsstarke Gemeinde, wobei die Einwohnerzahlen im Durchschnitt konstant steigen. Besonders die Nähe zur Stadt Salzburg (25 km) verleiht Straßwalchen einen großen Pluspunkt. Der Bauplatz ist von Seiten der Gemeinde aufgrund der hohen Nachfrage nach Wohnraum für eine Bebauung dieser Art vorgesehen. Alle notwendigen Nahversorger und Busverbindungen befinden sich in unmittelbarer Nähe.

 

The construction project ‘’Bright Side’’ is a terraced house development planned on a plot of land nearby the stream ‘’Hainbach’’ not far from the center of Straßwalchen. The project consists of a total of 13 contemporary residential units, which due to their modern architecture and central location represents a particularly attractive project. In addition, the concentrated use of renewable energies and sustainable components raises the standard of this project.

In addition to open floor plans, the best possible attention was paid during planning a special exterior design that offers the residents additional comfort. The special consideration for sustainability and energy efficiency is reflected in the achievement of the ‘’energy-saving house standard’’.

The market town of Straßwalchen offers ideal conditions for a project of this kind. With around 8.000 inhabitants, it is a very populous community with the number of inhabitants constantly increasing on average. The proximity to the city of Salzburg (25 km) in particular gives Straßwalchen a big advantage.

Due to the high demand of living space, the municipality has earmarked the building site for a development of this type. All necessary local suppliers and bus connections are located in immediate reach.

 

Diplomarbeitsteam und Aufgabenstellungen

Michail-Lucian Dinu: Statische Bearbeitung der Flächentragwerke

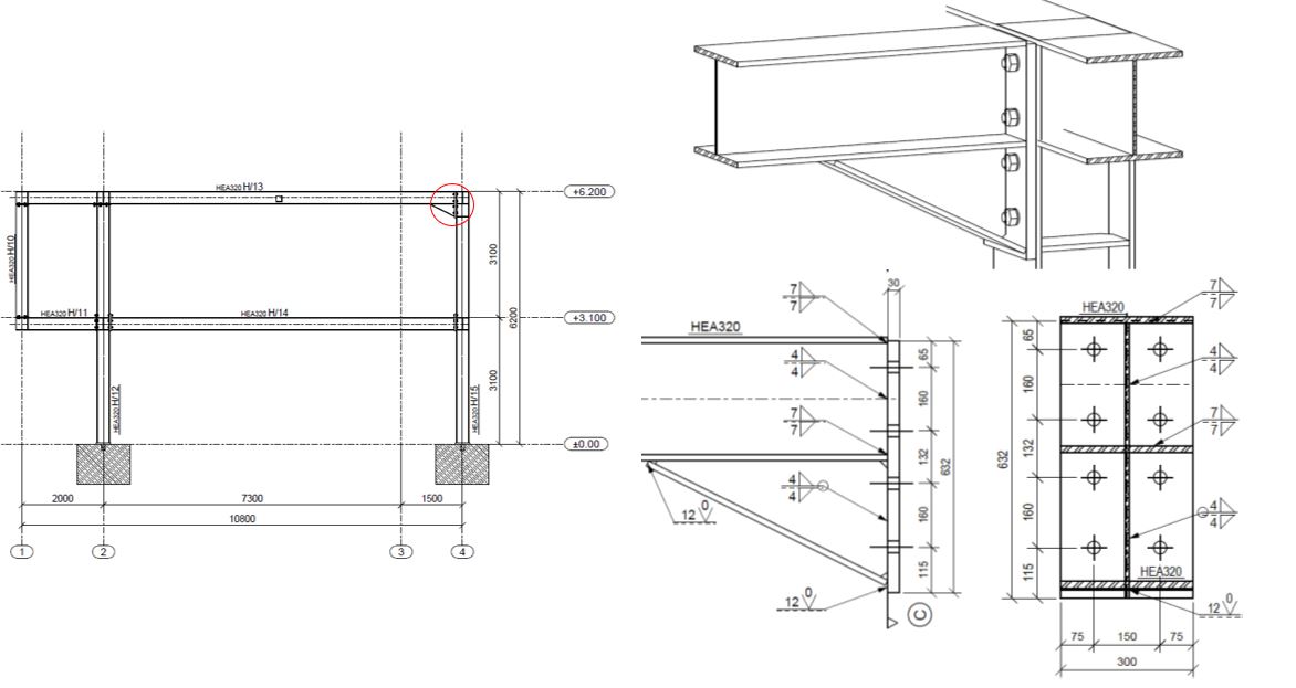
Drilon Cunaku: Statische Ausarbeitung in Stahl-Holzbauweise

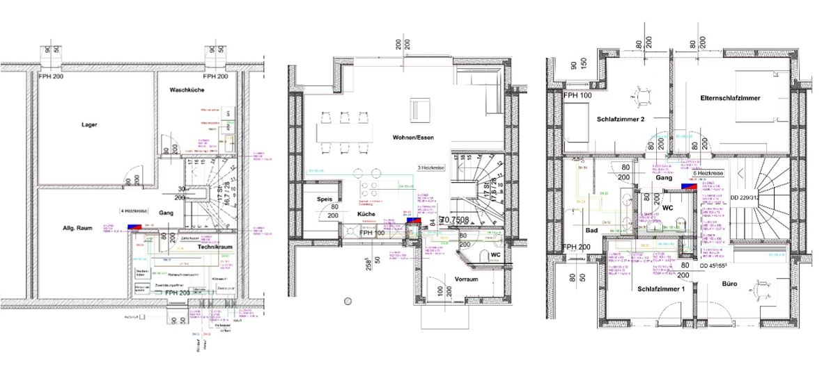
Kerstin Niemietz-Pfeifenberger: Bauphysikalische und haustechnische Bearbeitung

Benjamin O’Brien: Bauwirtschaftliche Bearbeitung

 

Diplomarbeitsbetreuung

Prof. Dipl.-Ing. Dr. Klaus Fuchs

Prof. Dipl.-Ing. Miloslav Duran-Bastak

Prof. Arch. Dipl.-Ing. Lukas Hosp