Diplomarbeiten aus dem

Verkehrskonzept Großarl

Die Probleme beziehen sich auf das Ortszentrum von Großarl und betreffen sowohl den fließenden als auch den ruhenden Verkehr. Einerseits wird der Marktplatz geprägt durch ständige Parkwechselvorgänge, resultierend aus den zu gering vorhandenen Parkplätzen im Ortszentrum, andererseits durch einen starken Verkehrsandrang aufgrund der auf dem Marktplatz befindlichen Zufahrtsmöglichkeiten für das östlich gelegene Ellmautal.

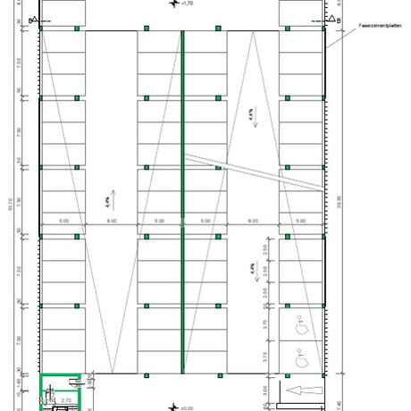
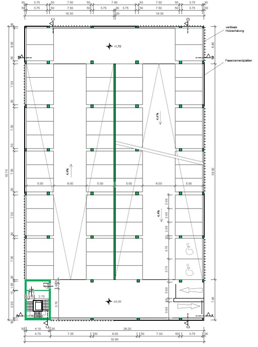
Als Lösungsansätze wurden ein zentrumsnahes Parkhaus sowie eine Umfahrungsstraße geplant, um den Marktplatz verkehrstechnisch zu beruhigen. Durch das Parkhaus soll der motorisierte Individualverkehr einen direkten Zielpunkt erhalten. Dadurch kann der Raum, der für die bestehenden Parkplätze am Marktplatz verbraucht wird, für eine gestalterische Aufwertung des Ortsbildes genützt werden.

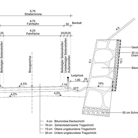
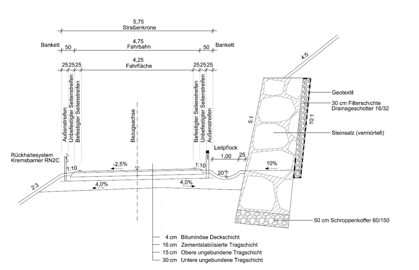
Die Umfahrungsstraße hat zum Ziel, den Verkehr Richtung Ellmautal bereits vor den Ortszufahrten abzufangen und über die geplante Straße am Ort vorbei zu lenken. Somit wird der Verkehrsandrang auf dem Marktplatz verringert, was sich positiv auf die Lebensqualität im Ort auswirkt.

Zusätzlich wurden beide Projekte durch eine Kostenschätzung auf ihre Wirtschaftlichkeit geprüft.

 

Projektteam:

Martin Berger

Gregor Steiger

Mario Wölflingseder

 

Projektbetreuer:

Prof. Dipl.-Ing. Martin Trenker

Prof. Dipl.-Ing. Manfred Lehner