Diplomarbeiten aus dem

Konstruktive, statische und baubetriebliche Planung eines Autohauses in Salzburg

Zum bestehenden Autohaus „Das WELT Auto“ an der Sterneckstraße in Salzburg wird eine Alternativplanung entwickelt. Der Entwurf basiert auf dem Raumprogramm des jetzigen Bestandsgebäudes. Die Planung beinhaltet einen Schauraum mit einem Übergabebereich. Dieser hat auch einen kleinen Shop und eine Wartelounge. Die Planung beinhaltet ebenfalls eine Werkstätte mit einer Erstannahmestelle, einer Waschhalle und einem Aufbereitungsraum. Außerdem sind Lagerräume, Büros und Sanitäranlagen in der Planung enthalten. 

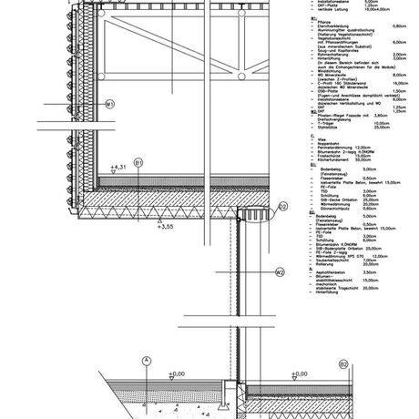
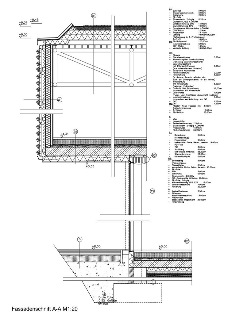
Dieses Projekt wird aus konstruktiver, statischer und baubetrieblicher Sicht betrachtet und bearbeitet. Hier stehen Themen wie Polier- und Detailplanung, Fassadengestaltung, Bauabwicklung im Vergleich von Österreich mit Deutschland und die statische Ausführung der Fassaden- sowie der Dachkonstruktion im Vordergrund.

 

Diplomarbeitsteam und Aufgabenstellungen

Martina Müller: Variantenuntersuchung für alternative Fassadenkonstruktionen

Ines Simeonov: Statische und konstruktive Ausarbeitung

 

Diplomarbeitsbetreuer

Dipl.-Ing. Thomas Pletzer

Dipl.-Ing. Miloslav Duran-Bastak