Diplomarbeiten aus dem

Volksschule in Thalgau

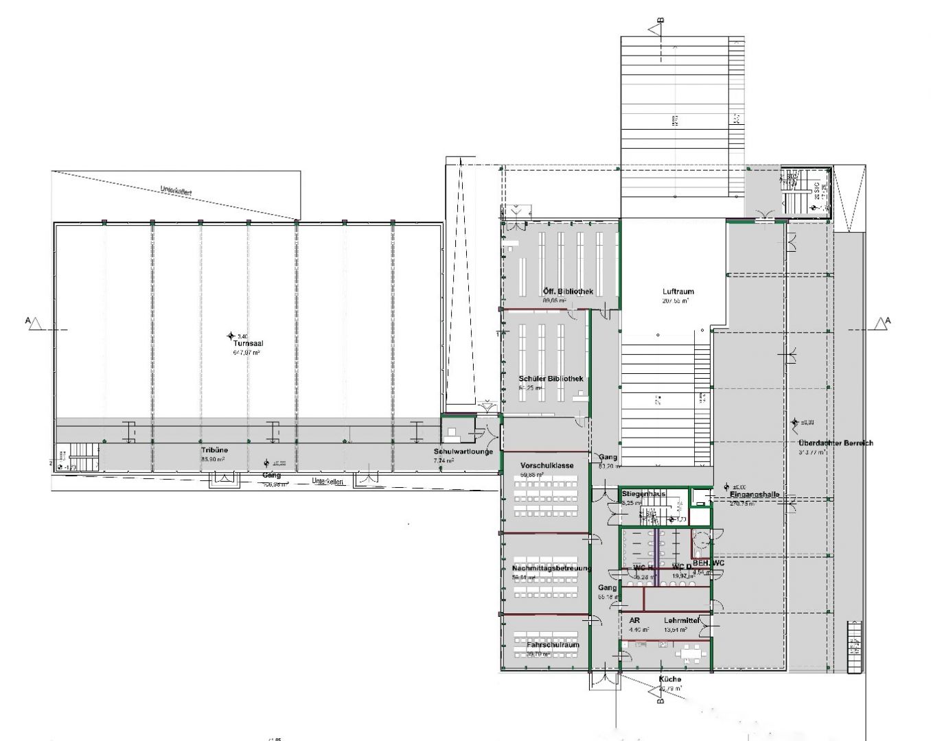
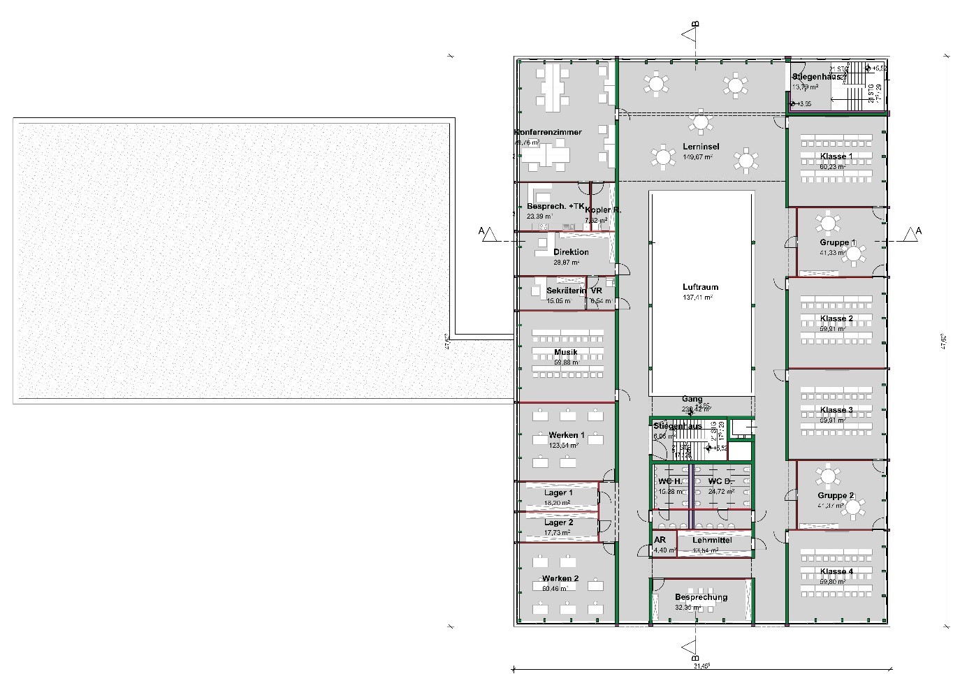
Zur bestehenden Volksschule in Thalgau wurde eine Neuplanung entwickelt. Der Entwurf basiert auf dem Raumprogramm des Architekten-Wettbewerbes von 2010. Hierbei sollten 13 Klassen, 6 Gruppenräume und die dazugehörigen Sonderunterrichtsräume entstehen. In jedem Geschoss befinden sich Sanitäreinrichtungen und Pausenbereiche. Im Keller- und Erdgeschoss ist die zweigeschossige Bühne mit der dazugehörigen Innen- und Außentribüne situiert, die für schulische und externe Veranstaltungen genutzt wird. Weiters wird der Schützenverein im Untergeschoss der Schule untergebracht, das über einen eigenen Zugang erreichbar ist. Zusätzlich wurde eine Dreifachturnhalle geplant, die als eigener Baukörper an die Schule angrenzt und oberirdisch nur eingeschossig wahrgenommen wird, da sie zur Hälfte unterirdisch liegt. Durch das winkelförmige Anschließen des Turnsaales ergibt sich ein geschützter Bereich für Sport- und Pausenflächen. Das Schulgebäude und der anschließende Turnsaal wurden in Massivbauweise mit hinterlüfteter Fassade aus Eternittafeln geplant.

Im Speziellen beschäftigte sich die Gruppe in ihrer Diplomarbeit mit unterschiedlichen Themenstellungen:

Filip Dobrosavljevic plante die Erweiterung der Volksschule Thalgau mittels Aufstockung nach einer Analyse des bestehenden Gebäudes.

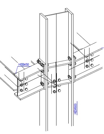
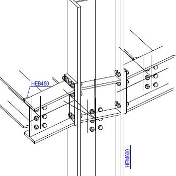
Manuel Klinger plante eine Variante zur bestehenden auskragenden Tribüne in Stahlbetonbauweise als Stahlkonstruktion und verglich dabei die Vor- und Nachteile dieser Baustoffe.

Die Zuständigkeit von Felix Unterberger umfasste die Kosten- und Terminplanung in der Ausführungsphase.

 

Projektteam:

Filip Dobrosavljevic

Manuel Klinger

Felix Unterberger

 

Projektbetreuer:

Prof. Arch. Dipl.-Ing. Rupert Krallinger

Prof. Dipl.-Ing. Dr. Herbert Walter