Eternit Architekturwettbewerb 2020

Trotz der erschwerten Rahmenbedingungen auf Grund der Covid 19-Pandemie und der damit verbundenen Herausforderungen haben sich unsere SchülerInnen der Hochbau-Abschlussklassen der Abteilung für Bautechnik mit viel Engagement am österreichweiten Eternit Architekturwettbewerb beteiligt und sehr interessante Projekte in einer breit gefächerten Themenwahl eingereicht.

Seitens der Firma Eternit Österreich GmbH wurde dieser Wettbewerb auch in diesem Jahr ausgelobt. Herr Bmstr. Ing. Klaus Pader hat den gesamten Prozess mit großem Interesse begleitet.

Eine Jurysitzung konnte auf Grund der momentanen Situation nicht durchgeführt werden. Die Projekte wurden online beurteilt und hinsichtlich ihrer Innovation und dem architektonischen und konstruktiven Konzept sowie dem möglichen Einsatz von Eternit-Produkten gereiht. Die Qualität der Projekte musste alleinig durch Präsentationsplakate vermittelt werden, da eine Erläuterung und Präsentation durch die SchülerInnen nicht erfolgen konnte.

Die Ergebnisse der beiden teilnehmenden Klassen unserer Schule zeugen von Kreativität und technisch fundierter Ausbildung, die die SchülerInnen in den letzten 5 Jahren erworben haben und die sie in den eingereichten Arbeiten zur Geltung bringen konnten.

Text: Prof. Arch. Dipl.-Ing. Petra Waldmann

1. Platz – 5AHBTH

Projekt Kindergarten Bienenstock in Grödig

Projektteam: David Matzer, Philipp Posch, John Quilloy, Moritz Wallner

Projektbetreuer: Prof. Arch. Dipl.-Ing. Stephan Trauner

Projektbeschreibung:

Der Kindergarten „Bienenstock“ - den Namen hat das Gebäude aufgrund seiner wabenförmigen Struktur erhalten - liegt am Fuße des Untersbergs in der Gemeinde Grödig. Für den Kindergarten wurde ein Grundstück in direkter Nähe zur Volks- und Mittelschule gewählt, das sich im erweiterten Wohngebiet befindet und somit für die geplante Bebauung bestens geeignet ist.

Der Grundgedanke bei der Gestaltung war es, ein System zu schaffen, das allen gewünschten Anforderungen entspricht und sich beliebig erweitern lässt. So kam uns die Idee, mit wabenförmigen (hexagonalen) Baukörpern zu arbeiten, die sich je nach Anforderung in der Raumhöhe unterscheiden können. Im Grundriss haben alle Waben aber exakt dieselbe Größe und die gleichen Abmessungen. Als Verbindungsglieder zwischen den Waben wurden niedrigere, rechteckige Baukörper eingefügt, die über vielfältige Funktionen verfügen. So können diese Zwischenglieder als Schleusen mit Ausgängen, aber auch als Abstellkammern oder Nasszellen genutzt werden. Das gesamte Gebäude ist als erdgeschossiger Bungalow konzipiert, lediglich in den Gruppenräumen gibt es mittelhohe Galerien, die von den Kindern vielfältig für Spiele genutzt werden können. Alle Funktionen über die ein Kindergarten verfügen muss, also Gruppenräume, Bewegungs- und Ruheräume, Garderoben, Nasszellen, Küche, Essraum, Personal und Nebenräume fügen sich aufgrund der innovativen Wabenstruktur harmonisch ineinander.

Die Außenanlage ist dabei so gestaltet, dass Kinder optimal spielen und sich entwickeln können. Dabei ist es besonders wichtig einen grünen und lebendigen Raum zu schaffen. Der Sportplatz bietet den kleinen Benutzern eine großartige Fläche, um sich zu bewegen und auszutoben. Die große Grünfläche mit dem Spielplatz und einer Vielzahl an Bäumen bringt viel Natur nahe an die Kinder heran und bietet ihnen an heißen Tagen Schatten. Die verspielte Gestaltung des Außenbereichs soll Kinder inspirieren, die Natur zu erforschen und zu erleben. Darüber hinaus bietet die Grünfläche einen optimalen Blick auf den wabenförmigen Baukörper, der mit großformatigen Eternit Faserzement Fassadenplatten gestaltet wurde. Die Kinder können durch die Differenzierung der Höhe der einzelnen Waben leicht erkennen, wo sich Gruppenräume, Nebeneingänge und andere Funktionen befinden, wenn sie vom Garten auf das Kindergartengebäude schauen.

 

Weitere Platzierungen – 5AHBTH

2. Platz

Projekt: Hauptfeuerwache Bad Ischl

Projektteam: Gabriel Curic, Selina Laabmayr, Hanna Schummel, Florian Winkler

Projektbetreuer: Prof. Arch. Dipl.-Ing. Rüdiger Fritz

3. Platz

Projekt: Wellnesshotel Landschloss Ort

Projektteam: Alexander Embacher, Bastian Weiss

Projektbetreuer: Prof. Arch. Dipl.-Ing. Stephan Trauner

3. Platz

Projekt: Schülerwohnheim Arche

Projektteam: Bugra Kahraman, Mirza Okanovic, Darko Petrovic, Furkan Yarat

Projektbetreuer: Prof. Arch. Dipl.-Ing. Rüdiger Fritz

1. Platz – 5CHBTH

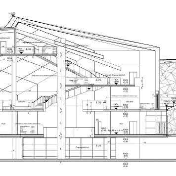
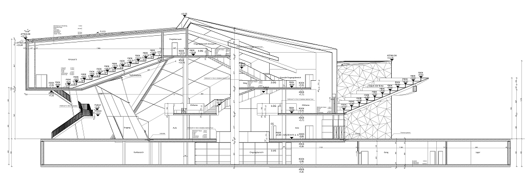
Projekt: Bioscope Salzburg (Kino)

Projektteam: Christian Eisenmann, Jakob Otto Eiter, Lukas Heuschneider, Lisa Schober

Projektbetreuer: Prof. Arch. Dipl.-Ing. Bernhard Kurzweil

Projektbeschreibung:

Das zu errichtende Kino soll mit seiner kristallinen und offen gestalteten Bauweise ein Portalgebäude für die dahinterliegende Bebauung bilden und mögliche Treffpunkte für verschiedenste Personengruppen schaffen. Weiters soll der Bau durch seine kreative Gestaltung und den Einsatz der neuesten Technik das Augenmerk der Bevölkerung auf sich ziehen.

1. Platz – 5CHBTH

Projekt: Museum der Moderne

Projektteam: Fabian Bartl, Florian Enrique Hartl-Rehberger, Tobias Wölik

Projektbetreuer: Prof. Arch. Dipl.-Ing. Bernhard Kurzweil

Projektbeschreibung:

Das Projekt zeigt einen Neubau des Museums der Moderne auf dem Mönchberg in Salzburg im Stil des Dekonstruktivismus. Ziel ist neben der unbedingt erforderlichen Funktionalität auch ein Design, das der Widmung - der modernen Kunst - gerecht wird. Ein Restaurant in der Kuppel sollte ebenso für großen Personenverkehr sorgen. Ein abstraktes Design generiert ein Wahrzeichen in dieser prominenten Lage, welches auch über den Berg hinausragt. Das Museumsgebäude wird wie ein Fels von einem kristallinen Wasserfall umgeben, welcher die Felswand hinunterstürzt. Die Kuppel sowie die vorgesetzte Frei-Form tragen mit ihrer verglasten, teils mit Eternit-Platten verdeckten Stahlkonstruktion wesentlich zur Belichtung des Museums bei. Der natürliche Fels im Inneren ist durch eine vorgesetzte Glasschale sichtbar. Die Erschließung erfolgt über den Mönchsberg und auch direkt aus der Altstadt über den ins Projekt integrierten Mönchsbergaufzug.

Weitere Platzierungen – 5CHBTH

2. Platz

Projekt: Wohnbau mit Kindergarten in Saalfelden

Projektteam: Mateo Milic, Karlo Josic, Ali Ekber Kina, Baran Gedik

Projektbetreuer: Prof. Arch. Dipl.-Ing. Alexander Lugner

 

Anerkennung

Projekt: Nahversorger mit Wohnungen in Thalgau

Projektteam: Florian Oberascher, Daniel Schlick, Daniel Winkler

Projektbetreuer: Prof. Arch. Dipl.-Ing. Alexander Lugner

 

Anerkennung

Projekt: Seniorenhaus Thalgau

Projektteam: Simon Schmidhuber, Sasa Simunic

Projektbetreuer: Prof. Arch. Dipl.-Ing. Alexander Lugner